Allplan 2026: intelligente Workflows, Automatisierung und nachhaltiges Design
(28.11.2025) Die Produktversion Allplan 2026 weist Neuerungen in den Bereichen Produktivität, Genauigkeit und Nachhaltigkeit über den gesamten Projektlebenszyklus hinweg auf. Der Fokus der Softwareversion liegt auf Modernisierung, Automatisierung sowie auf Integration für nahtlose Prozesse - von der Gebäude- und Infrastrukturmodellierung über die Planung, Detaillierung und Fertigung bis hin zur Ausführung.
Integration von Preoptima Concept und GeoPackage DataExchange
Mit der Integration von Preoptima Concept verstärkt Allplan 2026 sein Engagement für nachhaltiges Design. Massenmodelle lassen sich so direkt aus Allplan nach Preoptima Concept exportieren.
Dadurch können:
- ohne detailliertes BIM-Modell frühzeitig CO₂-Bewertungen durchgeführt,
- der CO₂-Verbrauch während des Betriebs und über den gesamten Lebenszyklus hinweg bewertet
- sowie Designvarianten analysiert und verglichen werden.
Mit der Integration von GeoPackage DataExchange lassen sich GIS-Daten aus allen EU-Ländern und darüber hinaus nutzen und bieten so Zugriff auf genaue Standortinformationen.
Neuer AI-Assistent
Der neue AI-Assistent, verfügbar über die Connect-Plattform, erhöht die Planungseffizienz und verbessert die Entscheidungsfindung in frühen Phasen. Er stellt Anleitungen zu Workflows in Allplan, AEC-Standards und Best Practices zur Verfügung.
Verbessertes IFC-Handling
Allplan 2026 führt den kostenlosen browserbasierten Model Viewer, einen verbesserten XRef-Manager und die Cloud Reference (IFC-XRef via BIMplus) ein, um IFC-Daten einfacher einzubinden und zu verwalten. Neu ist außerdem der IDS-basierte Attributimport für Compliance-Daten; IFC4/IFC4.3-Importe und GLB-Export wurden erweitert. Die Integration zu Bluebeam erleichtert das Mitnehmen von Dokumenten in Allplan-Workflows.
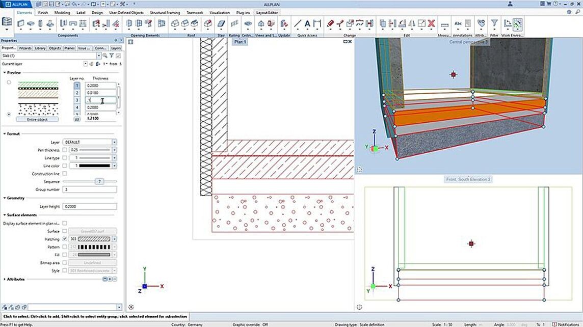
Gebäude- und Infrastrukturplanung
Für Architektur bringt Allplan 2026 bessere Werkzeuge für Freiformtreppen, mehrschichtige Decken und Oberflächenmodellierung, die präzise 2D/3D-Pläne und fehlerreduziertes Arbeiten ermöglichen. In der Infrastruktur integriert der parametrische Ansatz für die Tunnelmodellierung (Trasse, Querschnitt, Bau/Instandhaltung), verbesserte Ebenenverwaltung, ein einheitliches Tool zur Geländemodellierung und erweiterte parametrische Kreuzungsmodellierung für realistischere, weniger manuelle Ergebnisse.
Statische Analyse und -entwurf
SAF-Importe in BIMplus können nun direkt als Grundlage für 3D-Analysemodelle dienen; Übergaben an den Frilo BIM Connector sind nahtlos möglich. Neu in der statischen 3D-Analyse sind Werkzeuge für mobile Lasten und sowie Analysen von Fußgängerbelastungen. Die zusammengeführten Analyse-/Bemessungs-Module enthalten ein einheitliches, erweitertes Fundamentmodul zur effizienteren Berechnung der Statik.
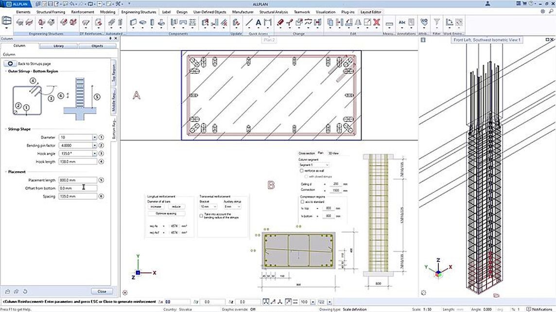
Bewehrungsplanung
Die Bewehrungsplanung wurde in Allplan 2026 weiter optimiert: nebst automatisierter Stützen- und Wandbewehrungsplanung ist eine schnellere Detaillierung sowie präzisere Detailplanung für kreisförmige/spiralförmige Geometrien möglich. Isometrische Platzierung, bessere Attributverwaltung und Kollisionserkennung vereinfachen die Detailplanung bei hoher Bewehrungsdichte.
Fertigteilplanung und Bauausführung
Entwurf und Fertigung werden zur Fertigteilplanung in einen gemeinsamen Arbeitsablauf eingebunden. Die Regelbasierte Bemaßung erzeugt automatisiert produktionsreife Pläne; die lokale Bemaßung erfolgt automatisiert und normgerecht. Die Anpassbare Mengenermittlung unterstützt den Stücklistenexport inklusive aller erforderlicher Daten. Für Stahlbau sind benutzerdefinierbare Profile und intelligente Verbindungsprüfungen enthalten; es werden neue Materialtypen unterstützt. Verbesserte Fundament-Tools vereinfachen Modellverwaltung, reduzieren Fehler und beschleunigen die Übergabe an Baustellen/Produktion.
Weitere Informationen können per E-Mail an Allplan angefordert werden.
siehe auch für zusätzliche Informationen:
ausgewählte weitere Meldungen:
- Allplan veröffentlicht Leitfaden „Nachhaltig planen mit BIM” (15.9.2025)
- DfMA verstehen: Allplan veröffentlicht neues E-Book (22.7.2025)
- Neues Service-Release Allplan 2025-1 veröffentlicht (22.7.2025)
- Digitale Planung im baulichen Brandschutz: Universelle BIM-Daten von Wichmann Brandschutzsysteme verfügbar (28.4.2025)
siehe zudem:
- BIM und Architektur-CAD im Bau IT-Magazin von Baulinks
- Statik-Programme und GIS



